Bao trùm lên tổng thể là kiến trúc nhiệt đới xanh mát hoà quyện cùng thiết kế truyền thống mộc mạc như mái hiên gỗ và đồ nội thất mây tre.
Ngôi nhà ven sông được xây dựng trên diện tích đất 100m2, cao 3 tầng. Chủ nhà là cô chú trạc ngoại ngũ tuần nên đề bài đặt ra đơn giản là tạo nên một không gian yên bình, đơn giản và mộc mạc. Khi mà thăng trầm đã đủ đầy theo năm tháng, con người ta cũng đủ chiêm nghiệm nhiều hơn về cuộc sống này. Ngôi nhà khi hoàn thiện bao trùm lên tổng thể là kiến trúc nhiệt đới xanh mát hoà quyện cùng thiết kế truyền thống mộc mạc, gần gũi. Được biết để thi công và hoàn thiện căn nhà ven sông mất hết tầm 7 tháng.
Hàng hiên uống trà bên hồ cá Koi là điểm kết nối chính của gia đình, nơi những chú cún nằm sõng soài phơi nắng mỗi sớm mai. Phòng khách với kiến trúc mái gỗ tựa hồ như mái hiên truyền thống. Hệ cửa gỗ kính xếp hết về hai phía, không gian trong và ngoài không còn ranh giới.

Hàng hiên uống trà trò chuyện bên hồ cá Koi

Phòng khách là hệ cửa gỗ kính, khi mở xếp hết về hai phía, không gian trong và ngoài nhà không còn ranh giới. Khi đóng lại vẫn cảm nhận được không khí bên ngoài.

Từ phòng khách và bếp nhìn ra khu vườn khô lộ thiên ở tầng trệt.

Gian bếp thông thoáng với ô cửa lớn mở ra khoảng trời xanh màu cây lá.

Phòng ăn sử dụng các vật dụng mộc như đèn mây, ghế mây.
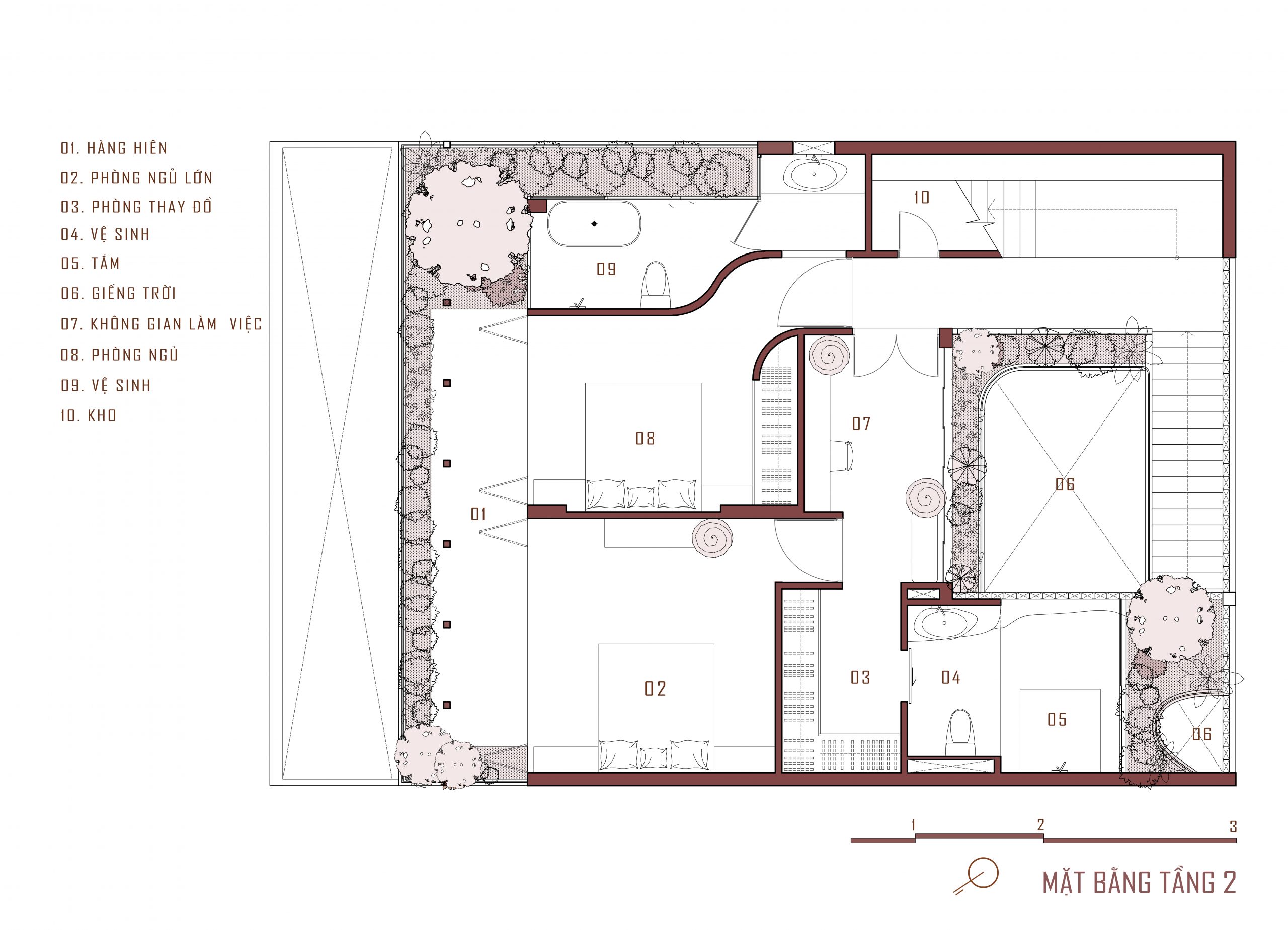
Không gian giếng trời chiếm 25m2 mang đến giao thoa giữa thiên nhiên và con người biểu hiện nhẹ nhàng qua từng vệt nắng, cành cây đung đưa trong gió biển. Bao quanh là hàng trầu bà thân leo xanh mướt, chiếc giếng trời như một điểm nhấn cho căn nhà. Thảm cây xanh đồ sộ với hơn 12 loại cây bao gồm các loại cây tầng thấp như dương xỉ, các loại cây thân leo như trầu bà, cúc tần Ấn Độ, các loại cây tầng vừa như vòi voi, cây lá họ chuối, môn, các loại hoa như hoa hồng, hoa giấy, hoa đậu biếc… các cây thân gỗ như khế, thiết mộc lan, huyết giác…
Gian bếp với ô cửa lớn mở ra khoảng trời xanh màu cây lá vừa thông thoáng trong lành vừa tạo cảm giác an yên mỗi lần vào bếp. Kế cạnh phòng bếp là không gian phòng ăn mộc với đèn mây, ghế cói.
Các thiết kế đường cong và cột bo tròn như gợn sóng biển được trải dài liên tục từ thiết kế phòng tắm sang đến phòng ngủ để một lần nữa khẳng đinh chắc nịch thế mạnh biển cả của quê hương. Phòng ngủ sau hàng hiên lam gỗ, riêng tư ý nhị qua lớp cửa song lam…Tất thảy đều vừa đủ!

Bên trong tầng trệt mặt tường được ốp đá tạo nên mạch cảm xúc tiếp nối tự nhiên trong ngoài.

Sự giao thoa thiên nhiên và đời sống biểu hiện một cách nhẹ nhàng qua từng vệt nắng…

Nhờ không gian giếng trời đến tận 25m2 với thiết kế xanh mướt

Bộ sưu tập hơn 10 chiếc xe đạp thể thao của chủ nhà được tận dụng vừa trưng bày vừa sử dụng mỗi ngày.

Nhưng cành cây trầu bà thân leo đung đưa trong từng hơi thở của gió mang dư vị của sông, của biển
Bạn đến chơi nhà có lẽ ấn tượng với những chiếc xe đạp thể thao được tận dụng để trang trí và cũng có thể lấy ra chạy thử nếu tò mò. Khoảng sân thượng với khoảng nhìn bao quát về dòng sông trước nhà, xa xa là thành phố nhấp nhô yên bình. Một chiếc bàn cao và bếp nướng có thể tạo nên một buổi tiệc nướng chill nhè nhẹ trên cao vào ban đêm.
“Mình luôn cảm thấy thú vị khi thực hiện những bộ ảnh kỷ niệm lưu lại đời sống của công trình sau một vài năm đưa vào sử dụng, khi mà không gian đã biểu hiện đầy đủ đời sống của con người trong từng hơi thở. Sau hơn một năm cô chú về sống trong ngôi nhà, mìnhthực hiện bộ ảnh này như lời tri ân gửi đến cô chú.”, KTS Quảng Chơn đã dành tặng bộ ảnh này như một món quà sau một năm cô chú dọn về sống.

Phòng ngủ đơn giản nhẹ nhàng với thiết kế vòm cong và tầm nhìn ra phía mặt sông

Hai phòng ngủ dành cho các con mỗi dịp về thăm nhà hoặc bạn bè và người thân nghỉ lại trong những chuyến ghé chơi dài ngày.

Mang cả thiên nhiên vào phòng tắm

Kết hợp cây cối và đá sỏi mang âm hưởng của biển cả

Kiến trúc cột vòm đường cong được sử dụng nhiều từ phòng ngủ sang đến phòng tắm.

Không gian hàng hiên tầng 2 với tầm nhìn bao quát về một dòng sông đẹp, xa xa là thành phố nhấp nhô

Hàng hiên lung linh khi lên đèn

Khoảng sân thượng rộng rãi nơi tổ chức những bữa tiệc nướng chill nhè nhẹ, vừa tụ tập bạn bè vừa đón gió hít khí trời.

Sân thượng như một quầy bar nhỏ vào ban đêm.

Một cảnh tượng quá đỗi yên bình mỗi chiều xuống
Ảnh dự án:




| CHUYÊN MỤC NHÀ ĐẸP MỖI TUẦN CÙNG PROPZY Tên dự án: SỐNG BÊN DÒNG SÔNG |
Tham khảo thêm bài viết liên quan:
- Quỳnh Anh Shyn trổ tài làm stylist cho Penthouse 9 tỷ
- Có nên nghĩ đến câu chuyện mua nhà, tậu đất ven biển ngay từ bây giờ?
- Những không gian chill dành cho giới trẻ ở Sài thành


Bài viết liên quan: