Trần Anh Ecological City
Thông tin chi tiết
Khu đô thị Trần Anh Ecological City là dự án tổ hợp đất nền, nhà phố, biệt thự theo thiết kế sinh thái kiểu mẫu mô hình Forest City Malaysia. Đây là dự án mới sắp công bố của chủ đầu tư Trần Anh Group, toạ lạc dự án thuộc xã Vĩnh Hòa, huyện Phú Giáo, tỉnh Bình Dương.
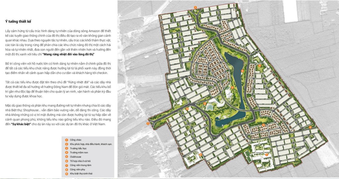
Theo chủ đầu tư, Trần Anh Ecological City được thiết kế theo cảm hứng từ cấu trúc hình dáng tự nhiên của dòng sông Amazon, theo nguyên tắc tự nhiên kết hợp thiên nhiên xanh, cấu trúc các khối thảm, các tán lá cây trong rừng để phân chia theo một tỷ lệ vàng hài hoà và tự nhiên nhất, đưa con người đến gần với thiên nhiên hơn và hướng đến khu đô thị xanh với tiêu chí “Mang rừng nhiệt đới vào lòng đô thị”.

Thông tin nhanh dự án Trần Anh Ecological City Bình Dương
| Tên dự kiến: Trần Anh Ecological City | Quy mô: 122 ha |
| Chủ đầu tư: Trần Anh Group | Thiết kế bởi: Palm Landscape |
| Vị trí: xã Vĩnh Hoà, Phú Giáo, Bình Dương | Pháp lý: 1/500 |
Hiện tại, khu đô thị Trần Anh Ecological City là dự án nằm trong kế hoạch dự kiến, chưa có công bố chính thức, chủ đầu tư Trần Anh Group đang cố gắng để hoàn thiện pháp lý cũng như cơ sở hạ tầng trước khi ra mắt. Tuy nhiên, phí khách hàng và nhà đầu tư rất quan tâm đến khu đô thị Trần Anh Ecological City. Vì dự án được thiết kế, bản vẽ khuôn viên của khu đô thị sinh thái mang ý tưởng độc đáo từ Malaysia.

Liên hệ tư vấn

Chuyên viên đã sẵn sàng hỗ trợ!
Tư vấn hoàn toàn miễn phí
Mã nhà đất SGCT59140
Gọi chuyên viên ngay